Renting a space in a home can be a reliable method to make added revenue, but it additionally requires clear lawful documents. A lease contract for renting out a room the legal rights and obligations of both landlord and lessee, guaranteeing that assumptions are effectively established.
In this overview, we’ll clarify what a space lease arrangement is, why it matters, and how to produce one making use of a straightforward and cost-free layout.
What Is a Lease Arrangement for Renting Out a Space?
A lease arrangement for renting out an area is a legitimately binding agreement in between a property manager and a renter that inhabits a specific area within a home. It provides the tenant the right to utilize one personal room, often in a shared home or apartment while describing accessibility to usual rooms such as the kitchen area, living area, or bathroom. Unlike a full-property lease, this file concentrates on the lessee’s unique space and makes clear just how shared areas are utilized.
If you’re intending to lease a room for additional income, it’s important to recognize the legal process and duties included.Read here Fillable Maryland Room Rental Contract PDF form At our site You can take a look at this in-depth overview on exactly how to rent out an area in your home for functional actions and property manager suggestions.
Numerous homeowner ask yourself, ‘Can you create your very own lease contract?’ Yes, absolutely, however it needs to be extensive and adhere to local and state regulations. To simplify the procedure, utilizing a space rental arrangement template complimentary for download is highly suggested. Starting from a straightforward room rental arrangement design template makes sure that all important legal aspects are included and lowers the danger of missing out on essential stipulations.
So, what should be consisted of in a lease agreement for leasing a space? Right here are the fundamental areas every property manager should cover:
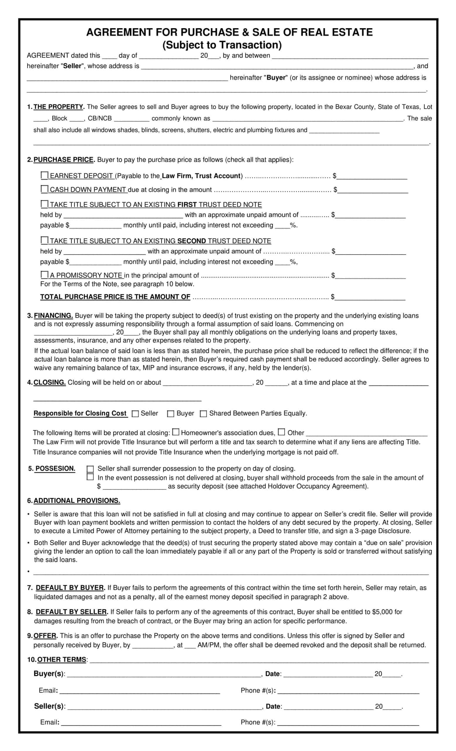
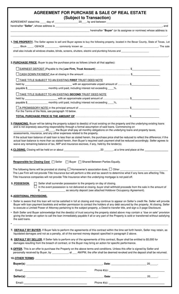
- Renter and Landlord Info
- Home and Space Summary
- Lease Term
- Lease and Repayment Terms
- Down payment
- Utilities and Solutions
- Home Rules
- Upkeep and Fix
- Legal and Conformity Clauses
- Signatures and day
Why Landlords Need a Space Lease Contract?
Having a created occupancy agreement renting an area is more than excellent method. It’s lawful protection. Verbal agreements may be misconstrued, and informal arrangements often trigger disputes.
Below are vital reasons every proprietor ought to prepare an in-depth space lease contract.
Lawful protection for both parties
A composed lease for leasing a room in my house plainly describes commitments and rights. It specifies the homeowner’s civil liberties, such as gathering lease and enforcing standing order, and the tenant’s civil liberties, such as a habitable living space.
This lawful clearness is vital if disagreements develop. Without an official lease for renting out an area in my home, property owners have little choice in court for issues like non-payment or building damage.
Clearness on rules, duties, and payments
The contract specifies that spends for utilities, what areas are shared, and when rental fee is due. Clear terms reduce complication concerning late charges, cleaning up obligations, or visitor policies, concerns that typically cause clash in shared real estate.
Preventing disputes by placing whatever in writing
Many landlord-tenant disputes arise from misunderstandings, not malice. Specifying every detail upfront from quiet hours to cleansing schedules, helps prevent disagreements later on. Property owners need to guarantee the tenancy agreement renting a space covers all expected shared living problems.
Key Elements to Consist Of in an Area Lease Contract
A great sample lease contract for room rental ought to be extensive. Right here is what to include in an area rental contract to ensure it’s legitimately sound and covers all possibilities.
1. Renter and Proprietor Information
Every space rental arrangement starts with basic recognition information. Consist of:
- Full legal names
- Call information
- Identification numbers for both the property manager and the tenant
This avoids complication, particularly in multi-tenant residential or commercial properties where several renters share typical rooms. Some landlords likewise consist of emergency get in touch with details for safety purposes.
2. Residential Property and Space Description
Clearly describe the residential or commercial property’s full address and the precise space being leased.
For instance: ‘Area 2, 2nd flooring, consists of private bathroom and common access to cooking area and washing.’ Discuss any common centers: garage, yard, or storage space to stay clear of misconceptions later on.
For landlords renting an area in a private home, this clarity is especially essential to specify which locations are private versus shared.
3. Lease Term
The lease term specifies the length of time the tenant can inhabit the room. Define plainly mention the begin and end dates, whether it’s a fixed-term (e.g., 12 months) or month-to-month setup. Month-to-month leases use even more versatility for both sides.
For more information concerning this kind of rental period, examine what is a month-to-month lease. Also, consist of revival terms and notice periods for finishing or extending the lease.
4. Rent and Repayment Terms
Specify the precise rent quantity, the due date (e.g., the 1st of the month), and approved payment methods, for example, direct bank transfer, on the internet settlement systems, or check. Lots of property owners now favor electronic repayments for effectiveness and record-keeping. If late charges use, define the grace period and charge percent.
To streamline lease collection and prevent missed settlements, describe the best way to accumulate lease for modern, safe and secure alternatives.
5. Down payment
A security deposit offers economic security in case of damages or unpaid rent. The contract ought to specify the down payment quantity, just how it’s saved (in a different escrow or count on account), and the timeline for return after the lease ends.
Under a lot of U.S. state regulations, proprietors must return the down payment within 14 to 30 days after move-out, minus any type of accepted deductions. Include clear conditions for deductions, such as fixings beyond regular deterioration to stay clear of disputes.
6. Utilities and Services
One of one of the most common sources of difference is energy prices. A clear area share rental agreement need to explain which utilities: power, water, gas, internet, are consisted of in lease and which are separated amongst tenants. For shared residential or commercial properties, think about including a utility-splitting stipulation defining just how each tenant adds.
This stops misconceptions regarding bills and encourages responsible usage.
7. Residence Rules
Rules and regulations create a respectful living environment. Summary assumptions for noise, sanitation, guest brows through, cigarette smoking, and pet dog policies. These information are specifically essential in shared homes or rooming houses where multiple renters connect daily.
Landlords leasing part of their private home ought to likewise clear up visitor hours, vehicle parking setups, and use common rooms like kitchens or patios. Having actually these created guarantees consistency and uniformity for every person.
8. Maintenance and Repairs
Maintenance clauses determine who manages repair services and maintenance. Typically, renters manage small problems like lightbulb substitute or minor cleansing, while property managers deal with architectural or system-related repair services (e.g., plumbing, A/C).
Encourage occupants to report problems without delay to avoid larger damages. Landlords can likewise define how maintenance demands should be sent by message, e-mail, or with a management platform.
For more insights on landlord expenses and duties, see property monitoring price.
9. Legal and Conformity Clauses
Every tenancy arrangement renting out a room has to adhere to local housing laws, fire security codes, and anti-discrimination legislations such as the Fair Housing Act (FHA). Include clauses covering expulsion treatments, subletting guidelines, and how legal notices are provided.
If updates or regulation changes occur throughout the occupancy, property owners can issue a lease addendum instead of rewording the whole agreement.
Exactly how to Develop a Lease Arrangement for Renting a Space?
Homeowner do not require to be lawyers to draft a strong agreement. Knowing exactly how to compose a lease contract for an area is a convenient process. Here’s exactly how to do it.
Step 1: Utilize a layout
Start with a simple area rental agreement layout or room for rent agreement template. These themes consist of all essential areas: lessee details, payment terms, and upkeep provisions, developed to fulfill many U.S. state requirements.
If the building is in a city with rental ordinances (like Los Angeles or New York), proprietors need to confirm that the template complies with local real estate codes, rent control guidelines, or disclosure laws.
Step 2: Tailor the terms
Landlords commonly ask, ‘Can you compose your very own lease agreement?’. Yes, it’s totally lawful, supplied the file includes all called for clauses under local landlord-tenant regulation. Next, individualize the file to mirror the special details of the residential or commercial property and living setup. Include:
- Building description: Address, space number, and accessibility to shared areas (kitchen area, laundry, backyard).
- Rent details: Regular monthly lease, due date, and repayment techniques (cash, check, bank transfer, or electronic apps).
- Down payment: Amount, holding approach, and timeline for reimbursement.
- Standing order: Cigarette smoking policies, guest limits, silent hours, and family pet permissions.
- Home furnishings: Specify if the space includes furniture or home appliances.
When customizing, make certain every condition specifies, quantifiable, and fair. It is necessary that both parties know what they are authorizing. We advise reviewing the vital concerns to ask prior to signing a lease to guarantee clarity on every term.
Step 3: Evaluation with the tenant
Prior to signing, both parties should assess every section with each other. Walk through rental fee, utilities, upkeep, and standing order thoroughly. Encourage the occupant to ask questions or suggest revisions for clearness. Transparency at this phase aids avoid misunderstandings, strengthens trust fund, and promotes lasting tenancy stability.
Furthermore, property managers with multiple occupants should make clear whether the agreement is joint or specific. Learn more concerning this at multiple lessees on a lease
Tip 4: Indication and disperse duplicates
Once both sides concur, the lease needs to be signed and dated. In the majority of united state states, electronic trademarks are legitimately valid under the Digital Signatures in International and National Business Act (E-SIGN).
Each celebration ought to receive an authorized copy either published or electronic for their records. Preserving documents ensures compliance and simplifies future lawful or economic references.
To even more safeguard the arrangement, proprietors might have signatures notarized (optional) or include witnesses, specifically for leases longer than one year.
Verdict
A detailed lease agreement for leasing a space safeguards both landlord and renter by specifying expectations clearly. Whether taking care of a common home or leasing an exclusive suite, having actually a signed and structured contract ensures smooth collaboration and lawful defense.
Landlords can begin with a free room rental arrangement layout, customize it, and complete it with their lessees. In time, maintaining written records and following neighborhood legislations constructs a reliable, professional strategy to property leasing.
